Alaplı Ticaret ve Sanayi Odası Meclisi Nisan ayı toplantısını gerçekleştirdi. Toplantıda Antalya’da bu yıl 17’ncisi düzenlenen YÖREX Yöresel Ürünler Fuarı ile TSO hizmet binasına yapılacak olan konfernas salonu ile sosyal tesisler ele alındı.
Toplantıda Başkanı Selçuk Oktay, Meclis Başkanı Nedim Kaplancan ve Oda Genel Sekreteri Taner Arslan’ın katılım sağladığı, Antalya’da bu yıl 17’ncisi düzenlenen YÖREX Yöresel Ürünler Fuarın yanı sıra, Dünya Odalar Federasyonu (WCF) Başkanı ve Türkiye Odalar ve Borsalar Birliği (TOBB) Başkanı M. Rifat Hisarcıklıoğlu ile gerçekleştirilen bilgilendirme toplantısında, Oda üyelerimiz için yapımı planlanan Konferans Salonu ve Sosyal Tesis Projesi Rıfat Hisarcıklıoğlu’nun olurlarıyla onaylandı kaydedildi.
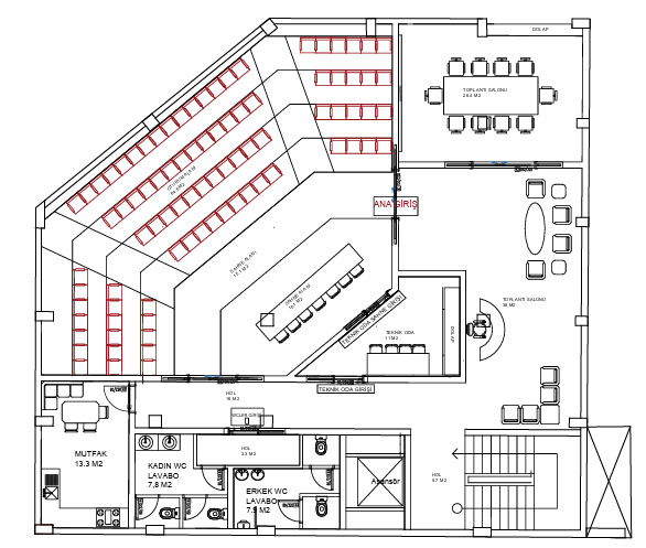
Başkan Selçuk Oktay tarafından sunumu gerçekleştirilen proje, Oda üyelerimizin ihtiyaç duyduğu toplantı ve organizasyonların yapılabilmesine imkân sağlayacak önemli bir yatırım niteliği taşıdığına işaret edildi.
Ayrıca, Başkan Selçuk Oktay ve Oda Genel Sekreteri Taner Arslan tarafından Alaplı Belediye Başkanı Nuri Tekin’e sunulan proje, belediye yetkilileri tarafından incelenmiş ve gerekli onaylar alındığına işaret edildi.
Toplantıda Oda Üyelerinin birçok ihtiyacını karşılayacak bu projenin onay sürecinde yanında olan Dünya Odalar Federasyonu (WCF) Başkanı ve Türkiye Odalar ve Borsalar Birliği (TOBB) Başkanı M. Rifat Hisarcıklıoğlu ve Alaplı Belediye Başkanı Nuri Tekin’e teşekkür edildi.





